Tên dự án: An Quý Villa (Dự án biệt thự An Quý Villa Dương Nội, KDT mới Dương Nội, Hà Đông)
Chủ đầu tư dự án: Tập đoàn Nam Cường
Vị trí dự án: Mặt đường Lê Quang Đạo kéo dài, Dương Nội, Hà Đông, Hà Nội
Nhà thầu xây dựng: Coteccons
Quy mô dự án: 374 lô biệt thự đơn lập và song lập
Diện tích đa dạng: 180m² – 198m² – 225m² – 250m² – 300m²
Thiết kế biệt thự hiện đại: Biệt thự 2 mặt tiền (Trước nhà là đường, sau nhà là vườn hoa công viên), xây 3 tầng 1 tum
Hình thức bàn giao: Biệt thự được xây thô, hoàn thiện mặt ngoài, chưa ngăn phòng
Pháp lý: Sổ hồng vĩnh viễn
Thời gian bàn giao dự kiến: Hiện tại khu đô thị đã hoàn thiện, khách hàng có thể nhận nhà ngay khi hoàn thiện nghĩa vụ tài chính với chủ đầu tư

Tọa lạc tại mặt đường Lê Quang Đạo kéo dài (với 6 làn xe), cách sân vận động Quốc gia Mỹ Đình chỉ 2.6km với 10 phút lái xe, cách trung tâm Hội nghị Quốc Gia chỉ 2km.
Vị trí đắc địa phía Tây Hà Nội



Chính sách bán hàng tại biệt thự An Quý Villa Nam Cường linh hoạt và hấp dẫn







Mặt phía trước của biệt thự An Quý Villa Dương Nội

Mặt phía sau biệt thự An Quý Villa Nam Cường

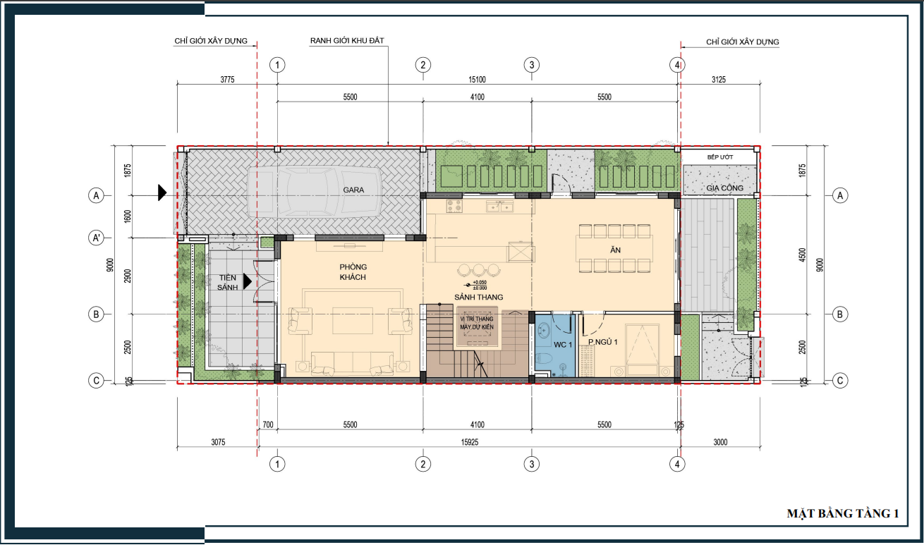
Thiết kế tầng 1 biệt thự An Quý Villa

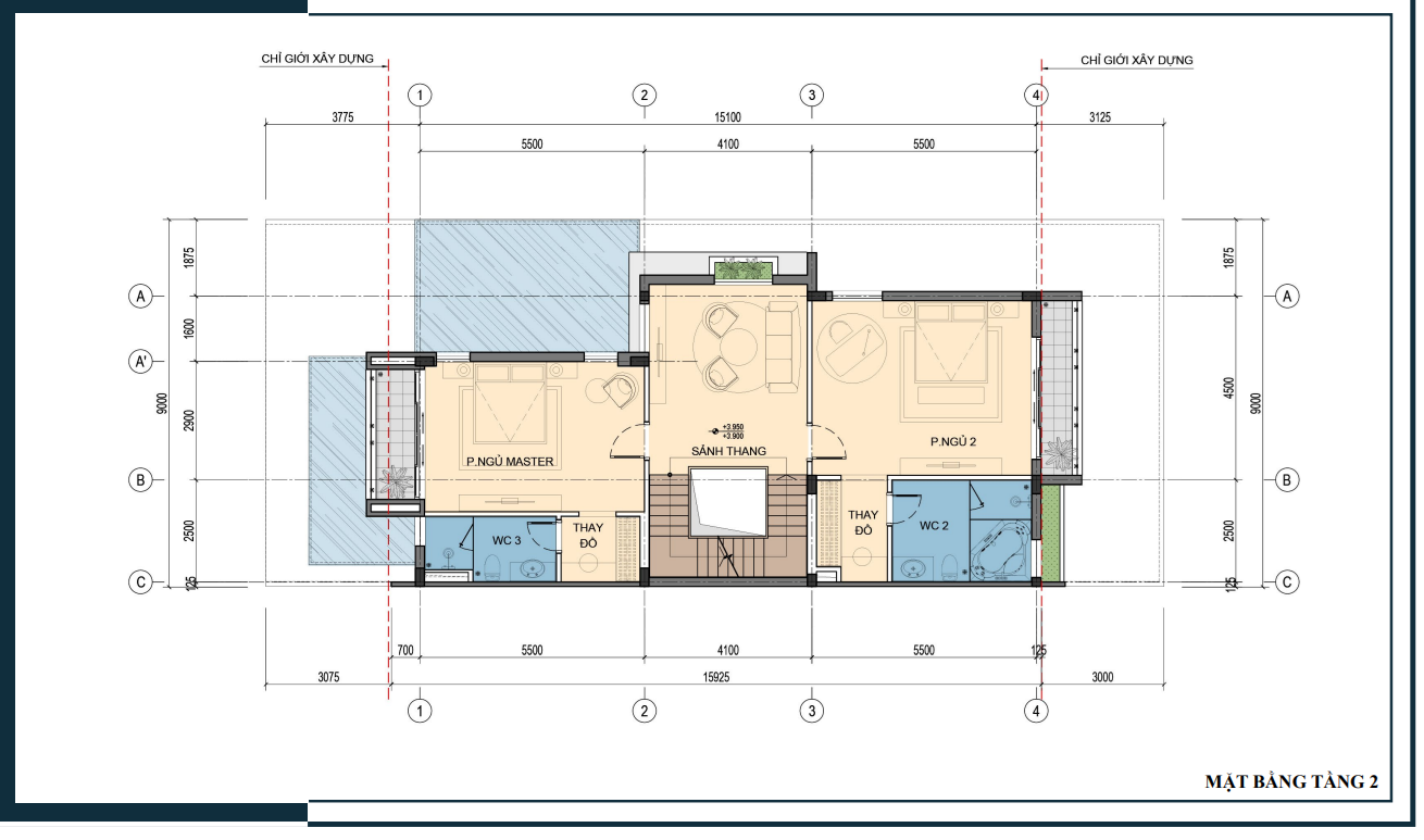
Thiết kế tầng 2 biệt thự An Quý Villa

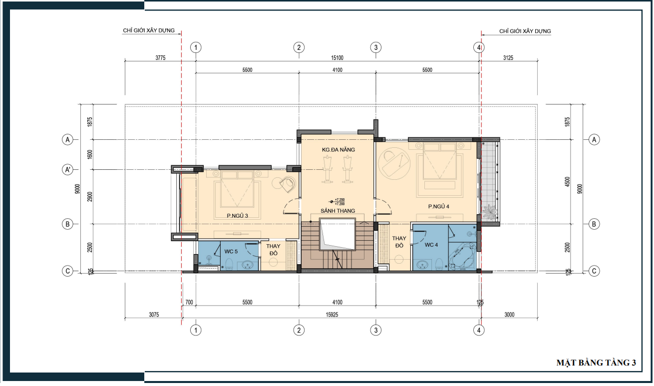
Thiết kế tầng 3 biệt thự An Quý Villa

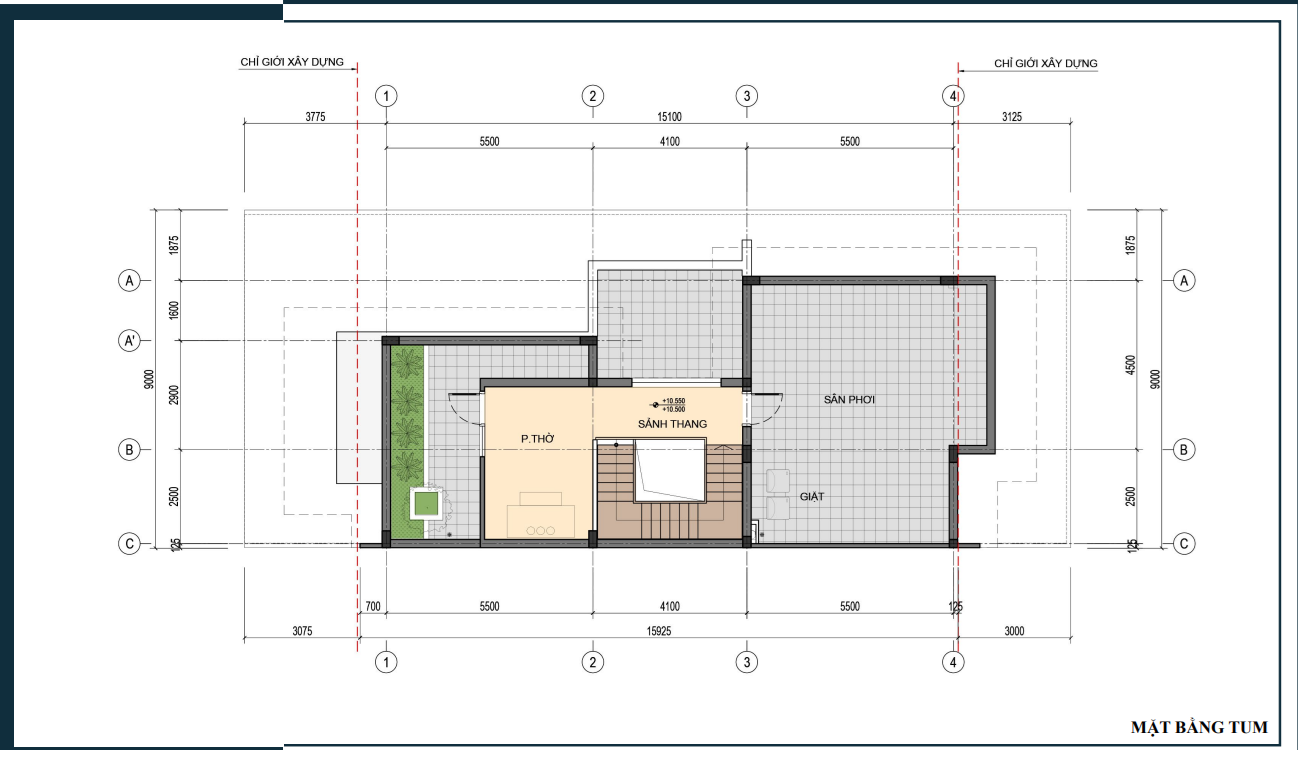
Thiết kế tầng tum biệt thự An Quý Villa

Mã số thuế: 0109884406
Địa chỉ trụ sở: Tầng 3, Tòa nhà Handiresco Complex, Số 31 Lê Văn Lương, Phường Nhân Chính (Quận Thanh Xuân), Hà Nội.



CÔNG TY CỔ PHẦN TƯ VẤN ĐẦU TƯ XÂY DỰNG CONTENTO
Thông tin, hình ảnh, các tiện ích trên website này và trong tài liệu bán hàng chỉ mang tính chất tương đối và có thể được điều chỉnh theo quyết định của Chủ đầu tư tại từng thời điểm đảm bảo phù hợp với quy hoạch và thực tế thi công của dự án.
Các thông tin, cam kết, ưu đãi, chiết khấu (nếu có)... chính thức sẽ được quy định cụ thể tại Hợp đồng mua bán với chủ đầu tư. CÁC THÔNG TIN TRÊN TRANG WEB NÀY MANG TÍNH CHẤT THAM KHẢO VÀ CÓ THỂ THAY ĐỔI MÀ KHÔNG CẦN BÁO TRƯỚC VÀ KHÔNG PHẢI CAM KẾT BÁN HÀNG.
Trang web này có thu thập thông tin cá nhân nhằm mục đích tư vấn sản phẩm. Khi cung cấp thông tin qua bất kỳ biểu mẫu đăng ký nào, quý khách nên chắc chắn đã hoàn toàn hiểu và đồng ý.